Godrej Jardinia is a RERA-certified project with the registration number UPRERAPRJ288309, ensuring transparency and reliability. Spread across 6.17 acres, the development features 5 towers offering luxurious 3 and 4 BHK apartments. As the first European-themed project inspired by the Gardens of Versailles, it combines elegance with modern amenities. Residents can enjoy a cutting-edge clubhouse designed with a piano theme, an indoor all-weather controlled pool, and an Olympic-sized outdoor swimming pool with an infinity edge. The project also boasts an outdoor pavilion with a library and home air purification techniques for clean and healthy living. Strategically located in the growing residential corridor, it provides convenient access to the Noida-Greater Noida Expressway, Yamuna Expressway, and FNG Expressway, making it well-connected to key areas. Additionally, it is close to IT hubs and offers proximity to sports facilities like the PCL Sports Complex.
3 BHK apartment starting price is 3.16 Cr Connect with us to book and visit.
Godrej Jardinia offers a wide range of modern amenities, including:
The Godrej Jardinia is well connected to key transportation networks:
Godrej Jardinia offers excellent residential, educational, and commercial proximity:
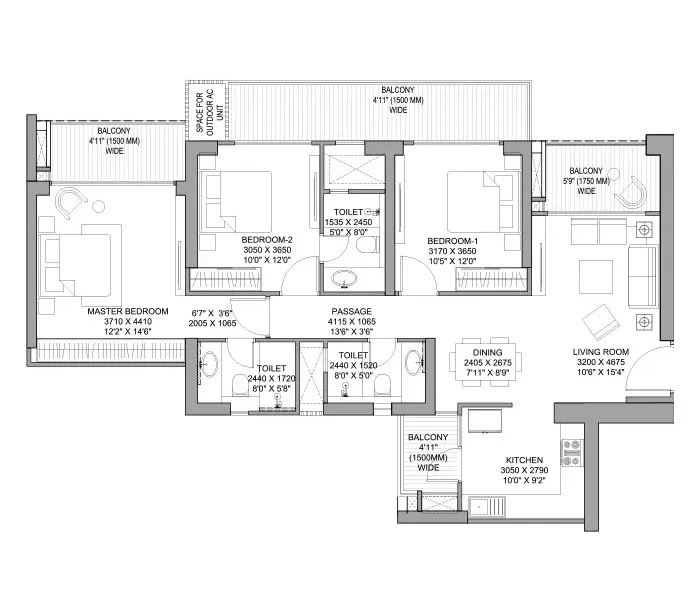
The project offers 1758 sq. ft. to 3200 sq. ft. configurations. For more details, you can visit our “Floor Plans & Pricing” section.
Structure: Earthquake-Resistant R.C.C. framed structure
Living Room & Dining Room:
Bedrooms:
Toilets:
Kitchen:
Balcony:
Lift Lobbies/Corridors:
| Location | Distance | Duration |
|---|---|---|
| Noida Sector 146 Metro Station | 230 m | 2 min |
| Noida-Greater Noida Expressway | 1 km | 2 min |
| Shiv Nadar School | 6.1 km | 11 min |
| Advant Navis Business Park | 7 km | 14 min |
| Sandal Suites Lemon Tree Hotels | 7.3 km | 15 min |
| Shaheed Bhagat Singh Stadium Noida | 7.8 km | 16 min |
| City Hawks Golf Course | 8.4 km | 19 min |
| Felix Hospital | 8.6 km | 17 min |
| Hazrat Nizamuddin Railway Station | 26.1 km | 39 min |
| Indira Gandhi International Airport | 41.4 km | 1 hr 10 min |

Godrej Properties is a big name in the real estate world. Founded in 1990, it is headquartered in Mumbai. They have received 250 awards for their excellent projects. With a more than a century’s legacy and philosophy of “innovation”, “sustainability” an “excellence” they continue to deliver trustworthy projects.
Compare listings
ComparePlease enter your username or email address. You will receive a link to create a new password via email.